Junction Laneway.
2025. Unbuilt

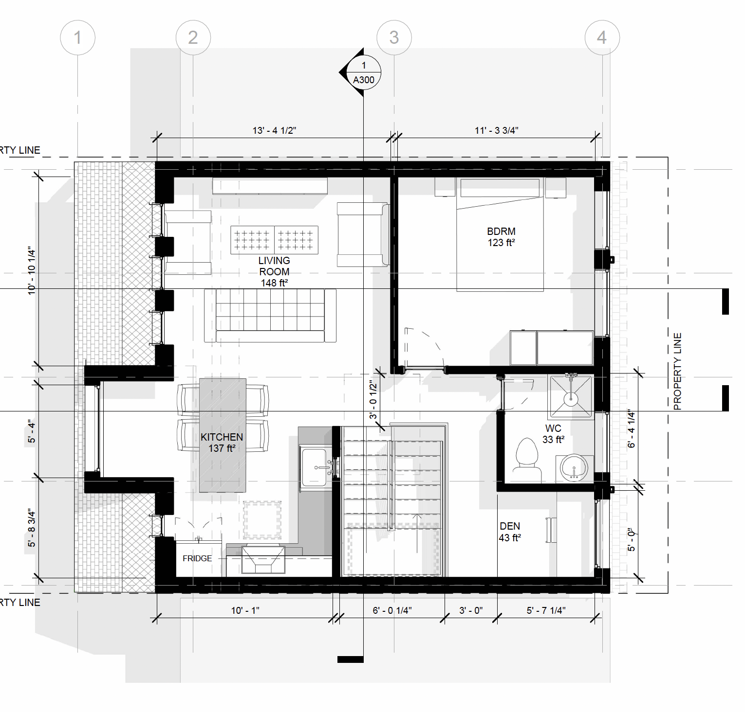
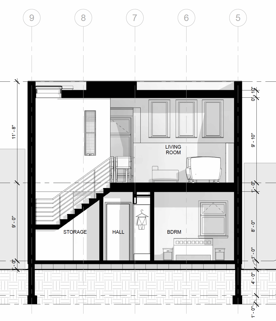
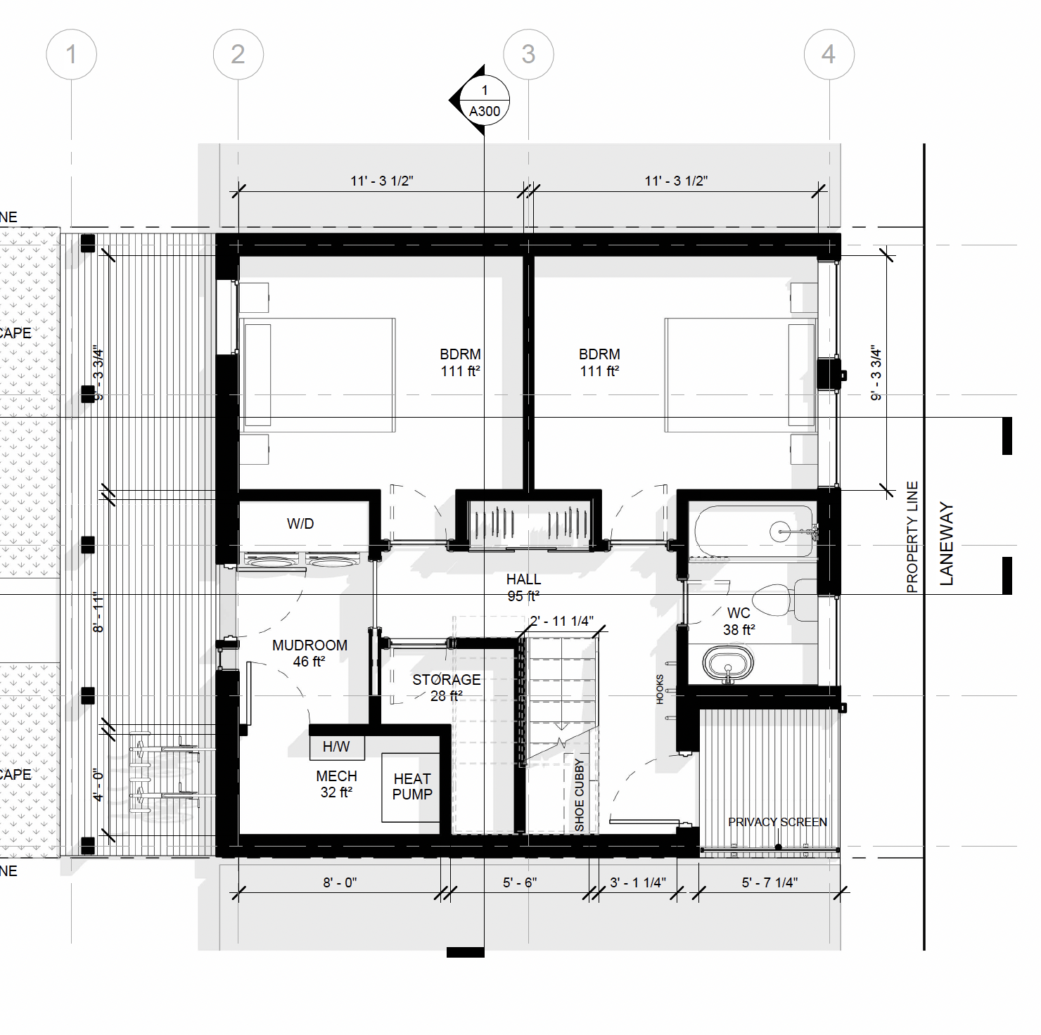
This 3 bedroom Laneway home design shows how you can have a large comfortable home in your backyard! Making excellent use of space by tucking away bedrooms on the main floor and concentrating light filled living space on the second floor this cozy and functional living space is a full-on family home tucked away in a west-end tree filled lane.