Modular ADU.
2025. Study and Design

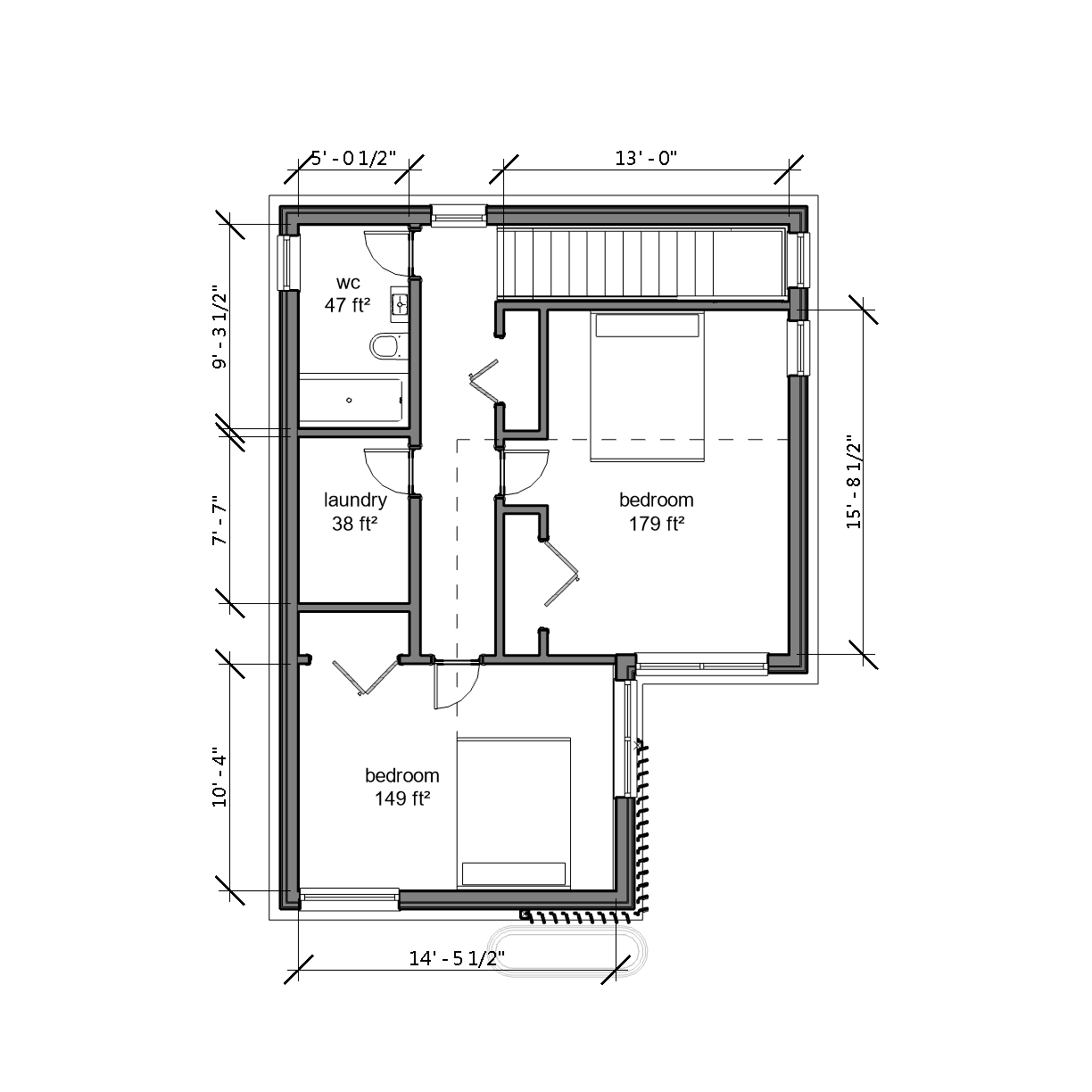
Three gorgeous Garden Suites, designed for a range of typical Toronto lots. The S/M/L models are respectively a studio, 1 bedroom and 2 bedroom ADU that are tailored for common lot widths in the Greater Toronto Area. These suites are designed with the principle of ‘Lightness’ with an ethos of reducing harm and disruption to the site and ecological balance. They were designed with modular wall panel construction in mind but can also be built using traditional construction. Adaptive shade and rainwater harvesting elements allow these dwellings to be customized for different site conditions. Reach out of you are interested in building one of these predesigned units!